駅徒歩4分
安心と快適を備えたスタイリッシュ1K
オーパスホームズ大泉学園Ⅱ
| 賃料帯(共益費) | 間取り | 築年 | 階建 | 構造 | 総戸数 | 駐車場 |
|---|---|---|---|---|---|---|
| 確認ください
|
1K | 2023年9月 | 10階 | RC造 | 23戸 | なし |
| 所在地 | |||
|---|---|---|---|
| 東京都 練馬区 東大泉3丁目17番7号 | |||
| 沿線・駅 | |||
| 西武池袋線/大泉学園駅 | 徒歩4分 | ||
物件説明
西武池袋線「大泉学園」駅より徒歩4分。
駅近の利便性と落ち着いた住環境を兼ね備えた、鉄筋コンクリート造10階建・全23戸のレジデンスです。
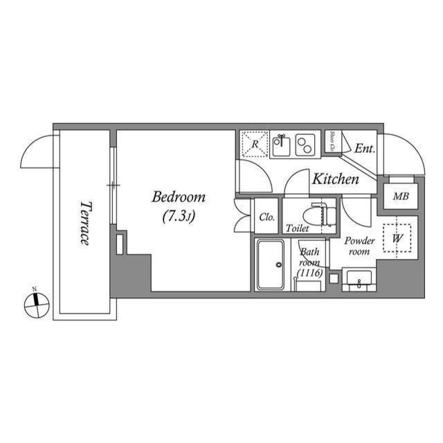
間取りは使い勝手の良い1Kタイプ。システムキッチン(2口コンロ)をはじめ、バス・トイレ別、独立洗面所、浴室乾燥機、温水洗浄暖房便座など、水まわり設備も充実しています。室内洗濯機置場やクローゼット、下駄箱も備え、すっきりとした暮らしをサポートします。
オートロック・防犯カメラ・モニター付インターホン・ダブルロックなど、防犯面にも配慮。
宅配ボックス完備で、不在時の荷物受け取りも安心です。
ペット飼育可能(規約による)で、大切な家族と一緒に暮らせるのも魅力のひとつ。
都市ガス仕様で経済的、バルコニーや人感センサーライトなど細やかな設備も整っています。
通勤・通学に便利な駅近立地で、快適なシングルライフを始めてみませんか。
物件情報
| 建物設備 | オートロック / 防犯カメラ / 宅配BOX / エレベーター / BS・CS / |
|---|---|
| 基本設備 | TVモニターインターホン / シューズBOX / クローゼット / 室内洗濯機置場 / 浴室暖房乾燥機 / エアコン(1基) / ガス2口コンロ / 温水暖房洗浄便座 / 無料インターネット / システムキッチン / 玄関センサーライト / シャンプードレッサー / 独立洗面台 / フローリング / |
| その他 | ■インターネット無料 (株)つなぐネットコミュニケーションズ TEL:03-4477-2000【Wi-Fiあり】 ■ペット可 ■自転車駐輪可、バイク置場(原付のみ) |
| 契約備考 | ■更新料:新賃料の1ヶ月分 ■第一保証会社:エポス(初回:40%、月次:無、更新:10000円/1年 or 14000円/1年) ■第二保証会社:JRAG(初回:70%、月次:無、更新:10000円/1年) ■退去時RC代(税別):35,000円、エアコン清掃費1基辺り:15,000円 ■1年未満解約違約金:FR無は総賃料1ヶ月分、FR有はFR相当分+総賃料1ヶ月分 ■2年未満解約違約金:FR有はFR相当分 ■フリーレント1ヶ月 ■敷金・礼金ゼロ! ■解約予告2ヶ月前(日割) 【西武プリンスホテルズ&リゾーツ SEIBU PRINCE CLUB会員さま限定】 本物件をご契約いただいた方全員に4つのうれしい特典をプレゼント! ![]() 特典2 Seibu Prince Global Rewardsゴールドステータス進呈 ゴールドメンバー特典はこちら 特典4 SEIBU Smile POINT 10,000ポイントプレゼント SEIBU Smile POINTやSEIBU PRINCE CLUBについてはこちら ※特典の進呈は入居契約完了後、2026年4月以降を予定しております。あらかじめご了承ください。 |
お部屋プラン
-
Aタイプ要問合せ
間取り 専有面積 賃貸料 1 K 26.21㎡ - 敷金 礼金 共益費 - - - -
Bタイプ要問合せ
間取り 専有面積 賃貸料 1 K 25.92㎡ - 敷金 礼金 共益費 - - - -
Cタイプ要問合せ
間取り 専有面積 賃貸料 1 K 26.14㎡ - 敷金 礼金 共益費 - - - -
Dタイプ要問合せ
間取り 専有面積 賃貸料 1 K 25.88㎡ - 敷金 礼金 共益費 - - -
マンションマップ
Contact
空室を確認したい、物件を見たい、詳しい情報を知りたい方は
この物件によく似ている物件






















